Нужно разработать корпус прибора для рефлексотерапии (так называют метод воздействия электротоком на биологически активные точки тела). Он будет использоваться для лечения детей. К прибору подсоединены электроды, а управляют им дистанционно.
Изначально заказчик хотел сделать весь корпус, кроме основания, из пластика, но в перспективе планировал менять количество разъемов прибора. Мы предложили делать из металла не только основание, но и крышку основного корпуса, а пластик оставить только на переднюю панель. Так будет дешевле в производстве плюс маленькую пластиковую деталь легко заменить, а «база» из металла останется все той же. К тому же повысится жесткость корпуса. Имелись опасения, что производство не сможет сделать металлические части «красиво», но мы эту задачу решили. Смотрите фото ниже.
Задачи и решения
| Проблема, которую решили | Нет собственной команды, чтобы создать технологичный и дешёвый в производстве корпус (в который к тому же можно будет вносить мелкие изменения в будущем) |
| Цель клиента | Разработать аппарат для собственных нужд — прямых аналогов и у этого прибора нет |
| Что нужно сделать? Задачи | 1. Спроектировать корпус из двух основных частей: одна — стальное основание, вторая — пластиковый «колпак». Дополнительная деталь — съемная или отдельная лицевая панель. В корпусе есть плата управления, плата со светодиодами и… еще четыре корпуса G413, в которых размещены электронные компоненты. Также аппарат комплектуется электродами. 2. На передней панели прибора — дисплей, 7 разъемов RCA, и светодиоды индикации. Сзади — выход кабеля питания и кнопка включения. 3. Предусмотреть в конструкции мягкие резиновые ножки, защитить дисплей оргстеклом. 4. использовать материалы, устойчивые к дезинфекции. 5. Современный внешний вид. Дизайн должен отражать принадлежность прибора к медицине. 6. Матовая поверхность с минимальной шагренью. 7. Предусмотреть на корпусе место для логотипа производителя и место для наклейки на задней панели |
| Решения и объем работ | 1. Разработали дизайн и эргономику корпуса, проконсультировали по цветам. 2. Предложили удешевить корпус, заменив материал. Заказчик с нами согласился. 3. Создали полный пакет КД, изготовили прототип, предсерийную партию и помогли выпустить первую «серию» |
Черновые эскизы. На этом этапе обращаем внимание не на детали, а на размеры аппарата и его пропорции. Отдельные элементы могут (и наверняка будут) меняться на следующих этапах.
Выбор — вариант «Д»:
Следующая задача — выбрать цвета. Цветовые решения для корпуса аппарата рефлексотерапии:
Выбран синий цвет. А передняя панель может быть такой — варианты дизайна наклейки:
Какой наклейка стала в итоге:
Другие варианты графики:
Этапы работ

1. Разработка технического задания
2. Промдизайн — эскизы
3. 3D-моделирование
4. Разработка пакета КД
5. Прототипирование
6. Производство установочной партии и серийных изделий
Дизайнерская модель:
Возвращаемся к цветовым решениям — подбираем точные цвета по палитре RAL (металл будет окрашен).
Надпись на задней панели:
Проработали конструкторскую модель корпуса. Приступаем к прототипированию. Этот прототип по характеристикам и размерам — копия серийного изделия (хотя так получается не всегда):
По прототипу есть замечания — собственно, он для и нужен для проверки, все ли в порядке. Во-первых, сгиб левого бокового края крышки сделан не под нужным углом, в результате при сборке появляется щели между крышкой и пластиковой панелью единичный случай, и он не будет повторяться в серии, тем более, что аналогичный сгиб правого края выполнен верно (на том же фото справа).
Во-вторых, на пленочной передней панели недостаточная плотность слоя краски — индикаторы каналов просвечивают сквозь него. Матовая поверхность самой панели, как оказалось, не подходит: размывается изображение, поэтому лучше сделать ее глянцевой. Надписи над разъемами оказались слишком мелкими, радиусы на пленке не совпадают с радиусами на панели, а у окантовки разная ширина — лучше убрать ее вообще.
Появление зазоров связано с технологией изготовления прототипа: он изготавливался без серийной оснастки. В «серии» такого не будет. А переднюю панель доработаем.
Сроки, цены, технологии
| Технологии и материалы | Литье полиуретана в силиконовые формы (для передней панели). Резка/гибка листового металла. Порошковая окраска |
| Над проектом работали | Технический писатель, промышленный дизайнер, 3D-моделлер, конструктор, руководитель проекта |
| Производство | Ruicheng (прототипы, серийное производство) |
| Ценовой диапазон разработки | $17 000–22 000 (2024 г.) |
| Сроки | 18 месяцев (включая серийное производство) |
| Тираж | 50-100 шт. в год |
Скорректировали КД по замечаниям к прототипу и почти добрались до «серии». Но сначала решили сделать 5 предсерийных образцов:
А это — уже серийные изделия:
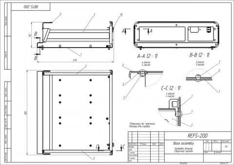
Конструкторская модель и фрагменты из пакета КД:
Кому нужна эта разработка корпуса?
| Отрасль | Медицина |
| Пользователи | Медицинский персонал — врачи, медсестры |
Рендеры:
Хотите узнать больше о разработке промдизайна, технологиях производства и изготовления корпусов — читайте наши статьи на Хабре и в блоге Формлаба.



























































































