LED-светильник Firefly

Разработали корпус универсального светодиодного светильника

Этап #1 Постановка задачи

Это универсальный светильник: его можно использовать и на улице, и в помещении. Конструкция — проще некуда: профиль с источником питания, на котором закреплены модули со светодиодами. Сам светильник может крепиться и на опоре, и на подвесе.

Примерная схема светильника. 1 — профиль, 2 — светодиодные модули

Форма профиля, на который крепятся светодиодные модули — на усмотрение Формлаба, но надо сделать так, чтобы светильники можно было соединять между собой по принципу «ласточкин хвост». Профиль можно закрыть декоративными накладками или крышкой.

Параллельно мы делали светильник Dragonfly. Этот, получивший название Firefly, заказчик решил выдержать в том же стиле.

Этап #2 Эскизирование

Прикидываем варианты дизайна элементов — в одном стиле с Dragonfly (минимализм и «техно»).

Варианты светодиодных модулей

Дошли до чистовых эскизов.

Определяемся…

Всё, концепция ясна:

Этап #3 3D-моделирование

Моделируем каждую деталь.

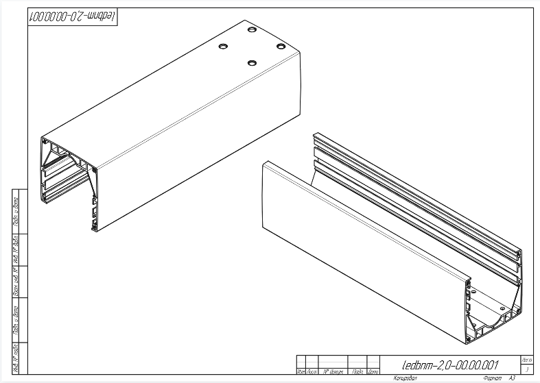
Этап #4 Конструкторская документация

Технологии производства — алюминиевая экструзия и анодирование, литьё пластика под давлением.

Поможем и вам с разработкой или производством

Если вы хотите проконсультироваться или получить коммерческое предложение, то заполните данную форму.

Чем больше подробностей вы укажите, тем лучше наш эксперт подготовится к разговору с вами, а значит общение пройдет продуктивно для всех. Конфиденциальность информации гарантируем! Можно подписать NDA.

Ниже не обязательно, но помогает ответить вам более точно.
Выберите близкую вам отрасль. По выбранной отрасли мы сможем подобрать кейсы из нашего опыта под вашу специфику
 
Это поле позволяет загрузить неограниченное количество файлов. Ограничение 2 МБ.

Допустимые типы: gif, jpg, jpeg, png, bmp, eps, tif, pict, psd, txt, rtf, odf, pdf, doc, docx, ppt, pptx, xls, xlsx, avi, mov, mp3, mp4, ogg, wav, bz2, dmg, gz, tar, zip.
Нажимая на кнопку, вы даёте согласие на обработку персональных данных и соглашаетесь c Политикой конфиденциальности
подпиши НДА

Прежде чем обсудить задачу, подпишите соглашение о неразглашении

Подписать NDA