Проект корпуса у заказчика уже был. Под него даже сделали плату. А потом выяснилось, что изготовить тот корпус невозможно.
Придется не переделывать, тем более, что это бесполезно, а делать заново. С серьезными ограничениями, которые диктует плата: изменять ее габариты точно не будут.
Задача — создать линейку корпусов для модулей станции удаленного ввода-вывода (СУВД) на DIN-рейку: промдизайн, эргономика, графика (значки и символы). Такие модули нужны для сбора данных с датчиков и управления исполнительными устройствами в системах промышленной автоматизации. Мы работаем над дизайном и эргономикой коммуникационного модуля, модуля ЦПУ (это центральный процессорный узел, «мозг» СУВД) и модулей аналогового и дискретного ввода-вывода, всего 6 штук в линейке. Все они собираются на DIN-рейке и соединяются жестким шлейфом.
Задачи и решения
| Проблема, которую решили | Нет своих дизайнеров и конструкторов, которые точно сделают пригодный для изготовления корпус |
Цели клиента | Разработать новый дизайн линейки корпусов |
| Что нужно сделать? Задачи | 1. Элементы корпусов — коннектор для монтажа на DIN-рейку на задней панели, DIP-переключатель — на боковой. На лицевых панелях, в зависимости от модели, есть разъем Ethernet, разнообразные клеммы (интерфейсные, для внешнего питания и подключения проводов датчиков), светодиоды индикации режима работы модуля, переключатель вкл/выкл, кнопка Reset. В составе нового модуля ЦПУ также предусмотрены дисплей и сетевые порты (RJ45 и RS232). 2. Габариты определим в процессе работы, когда оценим размеры и расположение внутренних компонентов. 3. Клеммы для подключения проводов полевых датчиков рекомендуется реализовать в виде разъема для шлейфа. 4. Без проводов на фронтальных панелях: их нужно спрятать или даже закрыть крышкой. 5. Связать задние панели модулей жестким шлейфом, можно через переходники. Сейчас используются стандартные CAN-шины. 6. Сборка корпуса — без болтов либо саморезов. 7. В дизайне можно использовать тонкие линии, детализированные обводки. Для корпуса желателен черный цвет. Нельзя повторять элементы дизайна модулей конкурентов |
| Решения и объем работ | 1. Создали дизайн для базового корпуса линейки — такой, который точно годился для производства. 2. Учли все пожелания заказчика: корпус собирается без болтов/саморезов, реализована совместимость с уже готовой платой |
Этапы работ

1. Разработка технического задания
2. Промдизайн — эскизы
3. 3D-моделирование
4. Макетирование
5. Разработка конструкции корпуса
6. Пакет КД
Сроки, цены, технологии
| Технологии и материалы | 3D-печать для первых образцов, затем — литье пластиков под давлением. Резка, гибка и обработка металлов |
| Над проектом работали | Технический писатель, промдизайнер, 3D-моделлер, конструктор, руководитель проекта. |
| Стоимость разработки | $25 000 (2022-2023 гг.) |
| Сроки | 8 месяцев |
| Тираж | 2000 шт./ год |
Заказчик напечатал макет одного из корпусов, собрал прибор. Плата, изначально сделанная для другого корпуса, встала на место:
И наш конструктор тоже напечатал макет:
Собрали замечания по результатам сборки макета корпуса, внесли мелкие доработки в конструкцию, чтобы все элементы собирались корректно и прилегали как надо.
Модель одного корпуса:
Модель еще одного:
Кому нужна эта разработка корпуса?
| Отрасль | Приборостроение, промышленное оборудование |
| Пользователи | Обслуживающий персонал предприятий |
| Покупатели устройства | Любое производство/предприятие с АСУ ТП |
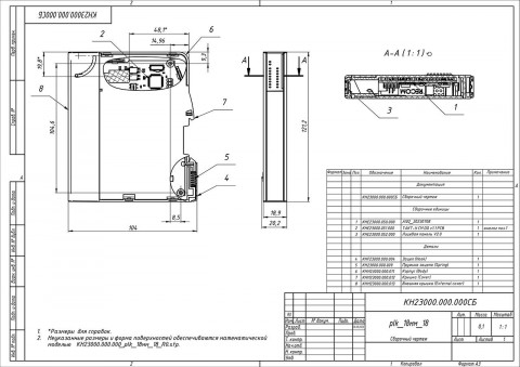
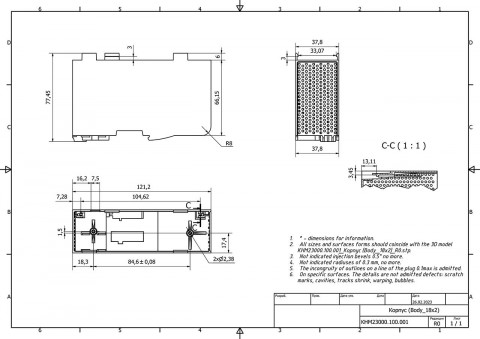
Конструкторская документация:
Хотите узнать больше о разработке промдизайна, технологиях производства и изготовления корпусов — читайте наши статьи на Хабре и в блоге Формлаба.

































