Этап #1 Постановка задачи
Когда устройство нужно срочно, иногда приходится чем-то поступаться. Например, проект по созданию этой репродукционной фотосистемы в Формлабе прошёл под лозунгом «Нет времени на дизайн, просто делай». Мы разработали конструкцию, сделали прототип и три рабочих образца фотоустановки. Срок на всё — три месяца.
Репродукционные системы — это фотокомплексы, с помощью которых можно получать очень интересные снимки. Их любят криминалисты и архивисты: с такими системами можно фотографировать «просто», можно в отражённом свете и проходящем; в инфракрасном и ультрафиолетовом излучении и т.д.
Камера на штанге регулируется по высоте, также можно менять углы наклона ламп подсветки. И, самое главное, этот комплекс очень компактный: его легко быстро разобрать и сложить в чемоданчик. А когда потребуется, вытащить и собрать.
Технология производства — гибка, сварка, фрезеровка и анодирование металла.
Этап #2 CAD-моделирование
Корпус лампы фотокомплекса.
И основание репродукционной установки.
Этап #3 Конструкторская документация
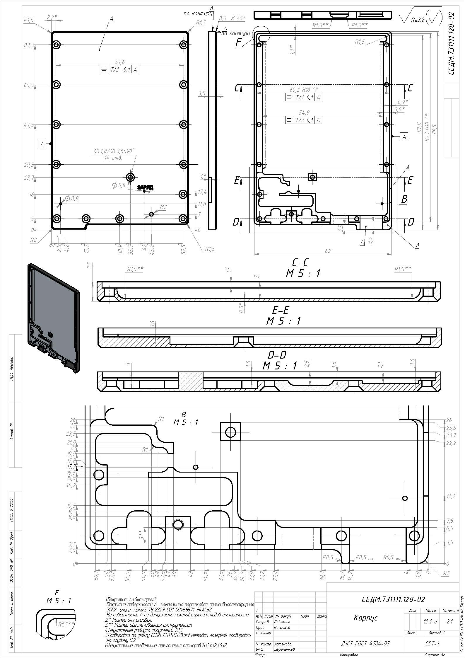
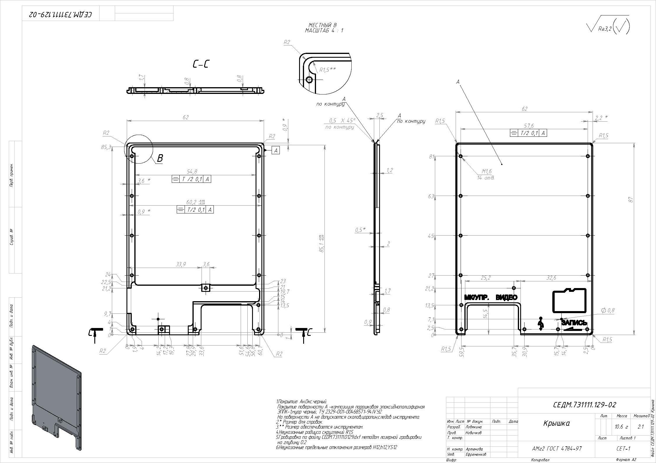
Конструкторскую документацию делаем в соответствии с ГОСТ ЕСКД.
Этап #4 Прототипирование
Этап #5 Производство серийных образцов
Мы уложились бы в эти три месяца, если бы не производство. При анодировании алюминиевых деталей их умудрились сжечь. Пришлось заказывать дополнительный комплект, а это — время. Но закончилось всё хорошо, установка была сделана и собрана.
Рендеры установки. Получилось никак не хуже, чем у конкурентов, и это — без дизайна. Конструкторы Формлаба умеют работать красиво. Уже не поспоришь.

— Иногда «не успеть» нельзя. Никак нельзя, потому что вся дальнейшая судьба проекта зависит от одного шанса, который выпадает только раз (выставка ли состоится в тот день или презентация инвестору, министру, президенту и т.д.)
В таких случаях мы рекомендуем резервное копирование (да, как на космических кораблях, где все системы многократно дублируются, чтобы исключить влияние человеческого фактора или свести его к минимуму). Если реализация проекта к конкретному сроку для вас критична и времени для правок не будет, обязательно дублируйте разработку и производство. Да, это в два раза больше денег. Но зато в пять раз меньше риска. И такой подход реально спасает. Мы проверяли.
Андрей Востриков,
руководитель.
ФОРМЛАБ, специалисты по корпусам
Если сдача проекта к конкретному сроку для вас критична и времени для правок не будет, обязательно дублируйте разработку и производство.






























