Этап #1 Постановка задачи
После прогулки по «зоне» — местности, загрязнённой радиацией, — будьте добры пройти контроль. Встаньте на основание установки, положите руки на детекторы. Измерения займут несколько секунд. Прибор подскажет, сколько ваши руки и обувь успели нахватать альфа- и бета-частиц. Если слишком много — просигналит.
Мы полностью переработали конструкцию старой (похоже, ещё советских времён) радиометрической установки. Посмотрите на неё:
Внешний вид установки контроля поверхностного радиоактивного загрязнения ног и рук не устраивал производителя много чем. Во-первых, сложной и запутанной конструкцией, во-вторых, высокой металлоёмкостью корпуса, в-третьих, большую часть креплений приходилось «колхозить», то есть делать самостоятельно из подручных материалов.
В общем, собирать эту установку было сложно и долго, а после того, как работы заканчивались, обнаруживалось, что и стоит она очень дорого, и весит достаточно много (а это — дополнительные расходы на транспортировку).
Стоило также предусмотреть возможность участия производителя в тендерах, то есть проанализировать аналоги, увидеть, какого функционала в них не хватает, и реализовать его в «своём» приборе. В случае этой установки таким функционалом стала возможность оперативной регулировки верхнего блока по высоте.
Возьмёмся снизить стоимость, уменьшить вес, добавить конструкции конкурентных преимуществ? Ну и, насколько получится, облагородить корпус?
К тому времени, как заказчик пришёл в Формлаб, попытка осовременить прибор уже была предпринята. Результатами стали набросок 3D-модели и полное отсутствие чертежей. Разумеется, с таким багажом идти на завод и заказывать серийное производство нечего и пытаться.
Внешний вид здесь вторичен, поэтому мы обошлись без эскизов — сразу отдали устройство конструкторам.
Список требований к конструкции был солидным: показатель пыле-и влагозащиты IP — 54, лёгкость сборки и изготовления, минимум зависимости от производителей электронных компонентов, уже упоминавшаяся здесь возможность регулировки верхней части прибора, стойкая к растворам для дезактивации поверхность и т.д. Плюс устройство нужно дополнить модулем для правильного позиционирования ног на блоках детектирования.
Планировалось выпускать пять версий прибора: на раме — с контролем рук и ног и с дополнительными модулями для тыльной части ладони; модификации с выносным блоком к каждой из этих моделей; с контролем только рук (в этом случае блок закрепляется на стене).
Последний штрих: установка должна соответствовать требованиям Росатома (СТО 1.1.1.02.004.1078-2015).
Этап #2 CAD-моделирование
Основа для работы — 3D-модель, оставшаяся от первой попытки обновить установку:
Делаем предварительные рендеры — исключительно для того, чтобы оценить внешний вид, даже без некоторых деталей.
Дорабатываем конструкцию — заменяем компоненты. В частности, блок питания, мини-компьютер и дисплей будут новыми:
Одновременно разрабатываем дизайн интерфейса программного обеспечения:
Обновлённая 3D-модель:
Верхний модуль с креплением на стену:
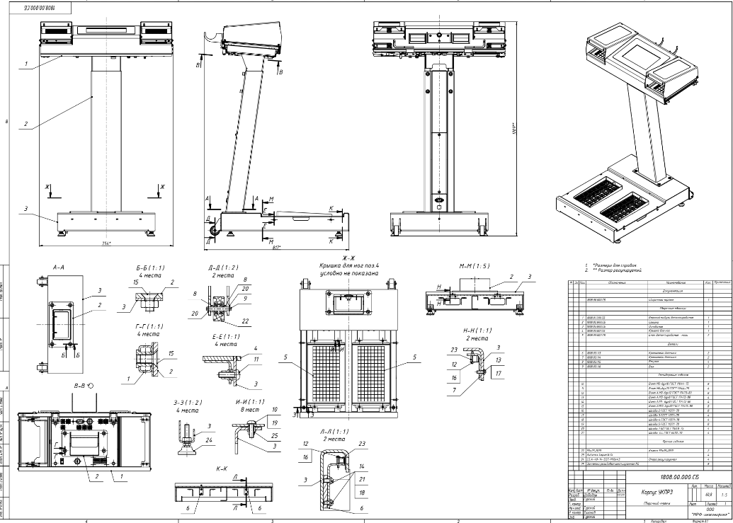
Этап #3 Конструкторская документация
Разрабатываем комплект чертежей:
Наша работа окончена — всё готово для прототипирования и/или производства.
Этап #4 Производство
А вот и производство:






























