Парковочный терминал Smart Park

Разработали конструкцию защищенного от влаги и солнца корпуса паркомата из листового металла, создали пакет конструкторской документации

Этап #1 Задача

Проблема заказчика: делал на заводе парковочные стойки. Но КД на них у него не было. И когда захотел сменить подрядчика на производство, отсутствие четежей стало серьезной проблемой. На основе образца мы разработали конструкцию паркомата — с улучшенной эргономикой и функционалом — и полный пакет чертежей. И теперь у заказчика есть КД, с которым может идти на любой завод.


Образец терминала

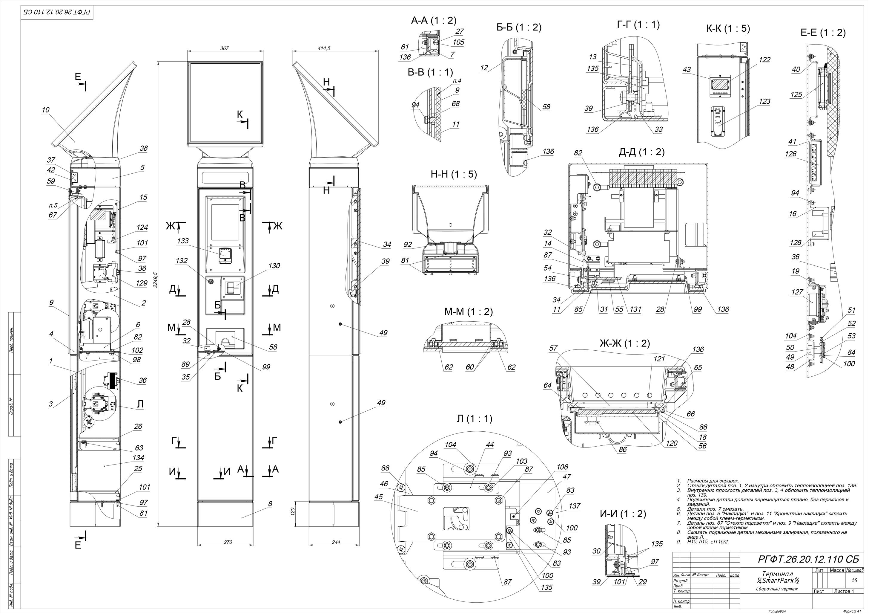
Корпус терминала разделен на два отсека, верхний и нижний. В верхнем находятся ПК, термопринтер, платёжное оборудование, сенсорный экран и дисплей, в нижнем — электротехническое оборудование. В отдельном корпусе сверху – солнечная панель, которая будет вращаться вокруг своей оси. Управляется терминал с тачскрина.

Казалось бы, все просто, но требований к терминалу много: это и IP54, и доступ внутрь для замены чековой ленты и сервисного обслуживания, и защита дисплея; обязательная вентиляция корпуса, чтобы внутри не образовывался конденсат, да и вообще защита от влаги: устройство будет постоянно находиться на улице, а значит, будут и снег, и дождь. И палящее солнце, кстати: нужна также термоизоляция внутренних компонентов. Корпус для солнечной панели должен быть сделан из листового металла. Крепление терминала к фундаменты — на анкерах.

Поскольку этап дизайна пропускаем, сразу переходим к конструкции.

Этап #2 CAD-моделирование

Этап #3 Конструкторская документация

И рендеры:

Поможем и вам с разработкой или производством

Если вы хотите проконсультироваться или получить коммерческое предложение, то заполните данную форму.

Чем больше подробностей вы укажите, тем лучше наш эксперт подготовится к разговору с вами, а значит общение пройдет продуктивно для всех. Конфиденциальность информации гарантируем! Можно подписать NDA.

Ниже не обязательно, но помогает ответить вам более точно.
Выберите близкую вам отрасль. По выбранной отрасли мы сможем подобрать кейсы из нашего опыта под вашу специфику
 
Это поле позволяет загрузить неограниченное количество файлов. Ограничение 2 МБ.

Допустимые типы: gif, jpg, jpeg, png, bmp, eps, tif, pict, psd, txt, rtf, odf, pdf, doc, docx, ppt, pptx, xls, xlsx, avi, mov, mp3, mp4, ogg, wav, bz2, dmg, gz, tar, zip.
Нажимая на кнопку, вы даёте согласие на обработку персональных данных и соглашаетесь c Политикой конфиденциальности
подпиши НДА

Прежде чем обсудить задачу, подпишите соглашение о неразглашении

Подписать NDA