Этап #1 Постановка задачи
Попытки сделать отечественный планшет продолжаются (о том, как мы разрабатывали корпус для такого планшета в 2012 году, читайте здесь).
На этот раз задачу сделать корпус поставило перед нами КБ «Корунд», с которым Формлаб работал уже не впервые.
С материалом корпуса определились сразу — алюминий с пластиковой вставкой для антенны. Крышка крепится на винтах.
Этап #2 Эскизирование
Концепт:
Чистовая проработка:
Этап #3 3D-моделирование
Разрабатываем две версии планшета — с разъёмами USB 2.0 и USB 3.1.
Этап #4 CAD-моделирование
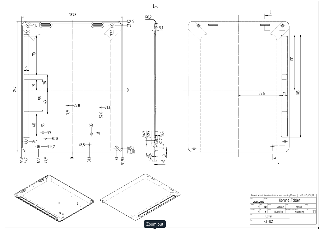
Этап #5 Конструкторская документация
Этап #6 Прототипирование
Рабочий прототип планшета. Технология производства прототипа корпуса — фрезеровка алюминия.

— Насколько нам известно, в "серию" этот планшет не пошёл. Но его разработку можно назвать эталонной: у заказчика имелось чёткое понимание того, что он хочет получить, а у нас — соответствующий опыт.
Поэтому рабочий прототип планшета был готов буквально через пару месяцев после начала работ над проектом.
Андрей Востриков,
руководитель
ФОРМЛАБ, специалисты по корпусам


















