Терминал оплаты «Корунд» v.1

Разработка дизайна и эргономики терминала оплаты

Этап #1 Постановка задачи

КБ «Корунд» поставило перед командой Формлаба достаточно непростую задачу: мы должны были подготовить два полностью функциональных прототипа их новой разработки (мобильного терминала оплаты, он же POS-терминал) всего за пару месяцев.

Ситуация осложнялась тем, что прототипы должны были выглядеть максимально похожими на серийные изделия.

Но сжатые сроки — это отнюдь не вся сложность проекта. Проблема заключалась и в том, что специалисты «Корунда» всё ещё не успели определиться с тем, как POS-терминал будет выглядеть. Попытались что-то сделать сами, но то, что получилось, им не понравилось.

Вариант дизайна «сделай сам». После этого пришлось обращаться к специалистам

При этом хотелось, чтобы был выбор из нескольких вариантов, только время на их разработку уже ушло.

Поэтому было решено разрабатывать сразу две версии внешнего вида устройства: один терминал будет в «дорогом» исполнении — корпус из алюминия, а другой сделаем попроще — из пластика.

Этап #2 Эскизирование

В состоянии полного цейтнота мы набросали эскизы:

Один корпус — из пластика (подешевле), другой — из металла (подороже).

Этап #3 3D-моделирование

Сразу же после утверждения эскизов взялись за моделирование. Дизайн для пластика:

У металлического корпуса форма будет другой:

Этап #4 Макетирование

Так же быстро (бегом, бегом!) напечатали на 3D-принтере макеты — для проверки эргономики:

Этап #5 CAD-моделирование

Одновременно над проектом работали два конструктора, причем каждый отвечал за свой корпус. Не намного проще было работать и специалистам заказчика: им приходилось модерировать обе разработки и делать также два дизайна платы и электроники.

Металлический корпус:

Пластиковый:

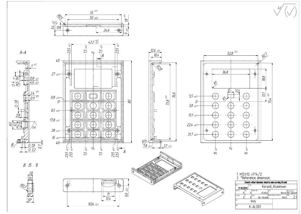
Этап #5 Конструкторская документация

Для металлического корпуса:

И пластикового:

Дизайн символов клавиатуры

Этап #6 Прототипирование

Прототип был нужен уже вчера.

! — Подробно о выборе технологии прототипирования читайте здесь.

— Если у вас есть дедлайн по презентации проекта, и он наступит уже через месяц-два, то, скорее всего, полноценной разработки под серийное производство не выйдет: вам просто не хватит времени. Но это не означает что на презентации показать будет нечего.

В этом проекте, как и во многих других (пример один, пример два), Формлаб делал полноценные рабочие прототипы для презентации по несерийным технологиям производства. На вид непрофессионал отличить такое несерийное устройство от серийного вряд ли сможет. Что нам и нужно.

Такой хитрый ход позволяет очень быстро сделать корпус и начать его показывать инвесторам или покупателям.

Но есть и минусы — разработанную конструкцию нельзя использовать для серийного производства. Это значит, что если вы решитесь размещать заказ на заводе, то потребуется полная переработка конструкции (а возможно, что и серьёзные правки дизайна). В этом случае закладывайте в бюджет дополнительные расходы, а в план разработки — больше времени.

Евгений Аракас,
руководитель проекта

Поможем и вам с разработкой или производством

Если вы хотите проконсультироваться или получить коммерческое предложение, то заполните данную форму.

Чем больше подробностей вы укажите, тем лучше наш эксперт подготовится к разговору с вами, а значит общение пройдет продуктивно для всех. Конфиденциальность информации гарантируем! Можно подписать NDA.

Ниже не обязательно, но помогает ответить вам более точно.
Выберите близкую вам отрасль. По выбранной отрасли мы сможем подобрать кейсы из нашего опыта под вашу специфику
 
Это поле позволяет загрузить неограниченное количество файлов. Ограничение 2 МБ.

Допустимые типы: gif, jpg, jpeg, png, bmp, eps, tif, pict, psd, txt, rtf, odf, pdf, doc, docx, ppt, pptx, xls, xlsx, avi, mov, mp3, mp4, ogg, wav, bz2, dmg, gz, tar, zip.
Нажимая на кнопку, вы даёте согласие на обработку персональных данных и соглашаетесь c Политикой конфиденциальности
подпиши НДА

Прежде чем обсудить задачу, подпишите соглашение о неразглашении

Подписать NDA